For more than a century, Shattuck Schoolhouse has served as the academic and community hub of Nobles even as the school grew and evolved. Friends gather in their class alcoves. Lively discussions unfold inside the classrooms. And senior classes count down the last minute of their final year inside storied Gleason Hall.
As a student in the 1980s, John Montgomery ’83, board of trustees president, fondly remembers the building as the center of campus life, where all but the Fifthies and Sixies shared the same spaces every day. “My favorite memories are of the confluence of activity inherent in essentially a one-building upper campus,” Montgomery said. “Either passing through, grabbing books from one’s locker, or hanging out during a free period, this space became a place to connect with friends or encounter new ones.”
It’s been nearly three decades since the Schoolhouse underwent a significant renovation. And, like any well-loved building, it needed tender loving care to better serve students of today and into the future.
Starting after graduation in June 2025 and running through early 2026, the school will embark on a major renovation project of the Schoolhouse. Plans call for updating the spaces to enhance Nobles’ commitment to forging deep, meaningful human connections for teaching, learning, and community. The project will build on the historic nature of the beloved building so that it can continue to be the heart and soul of Nobles.
“We initially saw this project only as a renovation of a dated building in great need of updated HVAC, technology, and finishes,” said Head of School Catherine J. Hall. “As we went through the strategic planning process, it became clear that this building offers us an incredibly unique and inspiring way to fulfill our vision with a reimagination.”
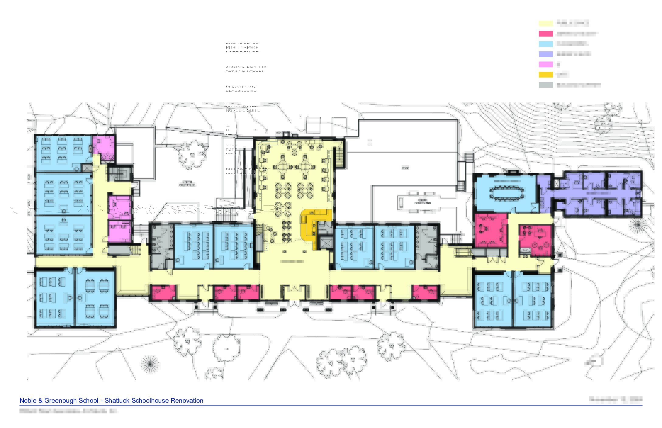
The transformation will begin at the entrance, making it a more open, transparent, and inviting space. From there, across its two stories, the renovated Shattuck will center around three priorities: to reestablish Gleason Hall as the heart of the Schoolhouse; to enhance teaching and learning spaces; and to centralize support services.
Since it opened in 1922, Shattuck has undergone a series of expansions and upgrades to meet the changing needs of its students.
The reimagination builds on the strength of Nobles—a people-centered place where students develop lasting bonds and gain mind-expanding instruction and mentorship. It addresses the shifting needs of the Nobles community and ensures that the physical space for those connections can continue to play that pivotal role for future generations.
“Shattuck once housed all of our academic programs and much of our Afternoon Program,” Montgomery said. “With the construction over many years of the Baker Science Center, the Pratt Middle School, the Academic Center, and the Henderson Arts Center, Shattuck provides the space to knit the entire upper campus together. It’s the place where all students and faculty—regardless of their areas of particular interest or specialty—can connect and engage with the entire Nobles community.”
Altogether, the project reflects Nobles’ new mission and values — to be a school where we forge human connections to inspire a lifelong process of discovery and unlock the potential to do good.
“Forging human connections can’t happen in isolation,” Montgomery said. “The Shattuck renovation will physically manifest the interconnectedness that is so critical to the Nobles educational journey.”
Reimagined Gathering Spaces
Gleason Hall
Gleason Hall was once the center of Shattuck, a favorite gathering spot for seniors that filled up for morning Assembly. But, these days, the 870-square-foot hall often sits empty. Students prefer to gather in the newer Putnam Library and Academic Center.
The project will restore Gleason Hall to its former intended purpose—a thriving meeting place for students to deepen their Nobles connections. It will also nearly quadruple the gathering area.
Renovation plans call for a lighter and brighter gathering space with new, comfortable seating for students, faculty, and staff to gather. There, they can linger together over a beverage and snack from a new cafe.
An open floor plan will also create a flexible space for multiple uses, from casual get-togethers to more formal events and meetings. Doors will open into a new courtyard, extending the social hub even further.
Classroom Space
New technologies have transformed how Nobles’ faculty teaches and students learn. Our reimagination of Shattuck will modernize its classroom spaces to inspire discovery, engagement, and innovation.
Each classroom will have new lighting, furniture, writing surfaces, projectors, wireless connections, and mechanical systems. Better acoustics and sound absorption will enhance the teaching and learning experience.
Nurses' Area
Nobles’ two nurses currently work from tight quarters inside Pratt Middle School. Across 205 square feet, they share just one sick room, one bathroom, and a small entry area that doubles as their office space. With the renovation, the nurse’s office will move into a new 1,150-square-foot wing inside Shattuck. The space will include two dedicated offices, two exam rooms, two restrooms, a sick room, a well room, and expanded medical supplies storage.
The new wing also will feature direct access to an exterior door, which is crucial during emergencies. A door to the exterior allows emergency personnel to more quickly reach a student or staff member needing immediate medical attention. The door will also serve as a convenient single entry point for seventh and eighth graders coming to see a nurse from Pratt.
Student Support
In this rapidly changing world, students are grappling with a myriad of issues. The reimagined Shattuck Schoolhouse will respond to those societal changes by better uplifting students through an integrated and centralized space for Nobles’ critical student support services. The second floor will be exclusively dedicated to student support, including faculty and staff offices; college counseling; diversity, equity, and inclusion; the Learning Center; psychology and counseling.
Sustainability Commitment
Materials Preserved
A new Shattuck will build on and advance Nobles’ commitment to sustainability. From the existing exterior red bricks to the interior, the renovation will maintain much of the building’s existing materials. Any salvaged millwork will be repurposed within the space, including metalwork, brick, and white oak.
Systems Updated
Shattuck will be upgraded with state-of-the-art, energy-efficient mechanical systems to optimize the building’s ventilation, heating, and cooling. Now relying on a gas boiler, the building will transition to an all-electric system, significantly reducing campus carbon emissions and lowering operational costs. The system will bring in fresh outdoor air, using special filters and energy-saving technology to make the interior air comfortable. A backup gas boiler will be on standby during power outages.
Windows Reinforced
Windows will be replaced throughout the building with high-performance, triple-glazed units to enhance the building’s energy efficiency by minimizing heat loss and gain. The windows, which meet Dedham’s current stretch energy codes, are designed to replicate the original character of the Schoolhouse, blending modern efficiency with historic charm.












